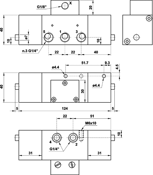
Flip/flop a comando pneumatico
Codice: 10.035.4