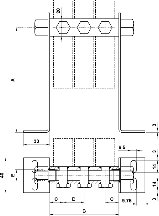
Kit collettore 2 posti per valvole a spola 1/4"
Codice: 01.032.3

codiceper valvolen. posizioniBCDE
01.032.31/4"26217.527G3/8"